白各莊新村
更新時間:2017-05-31
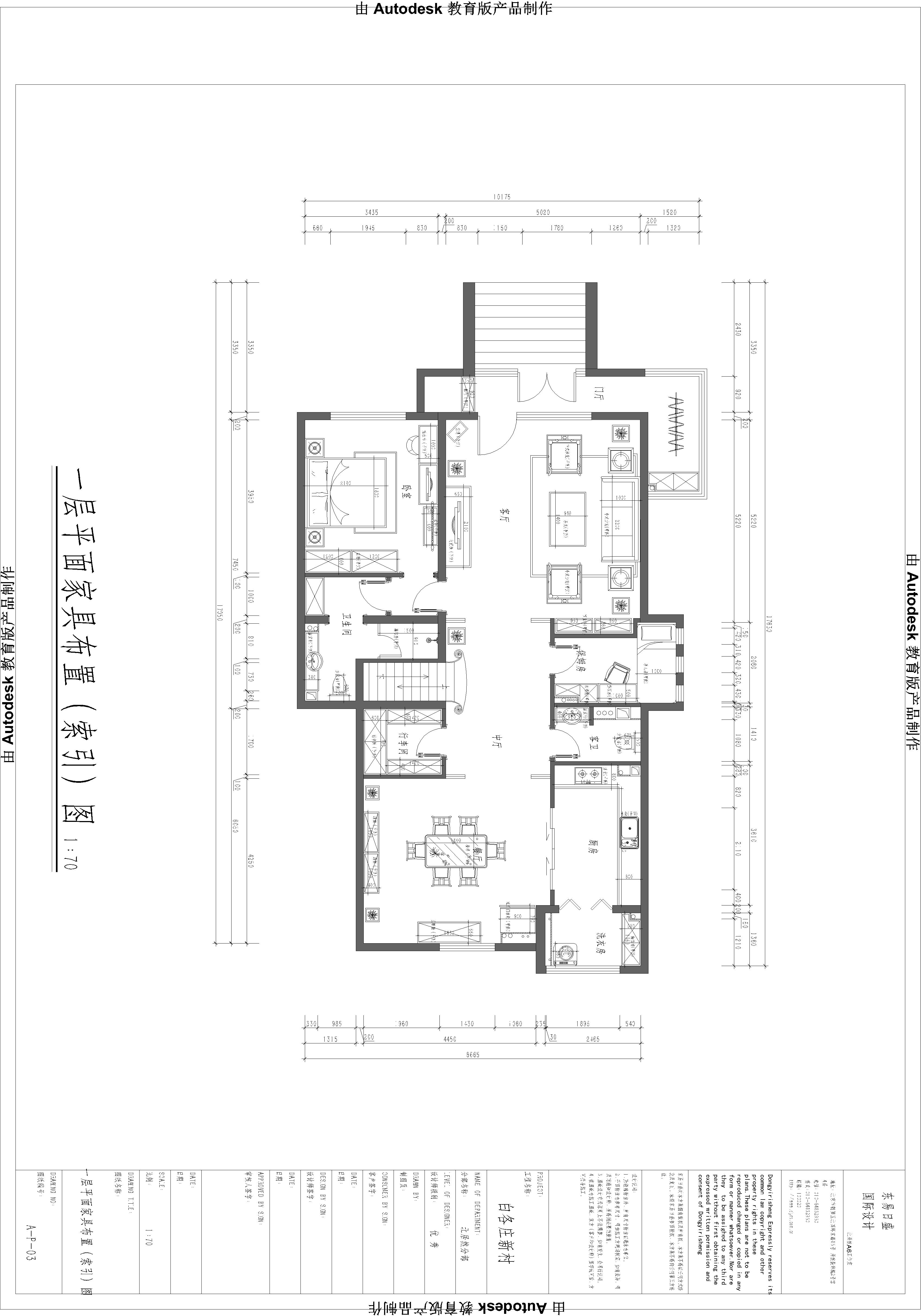
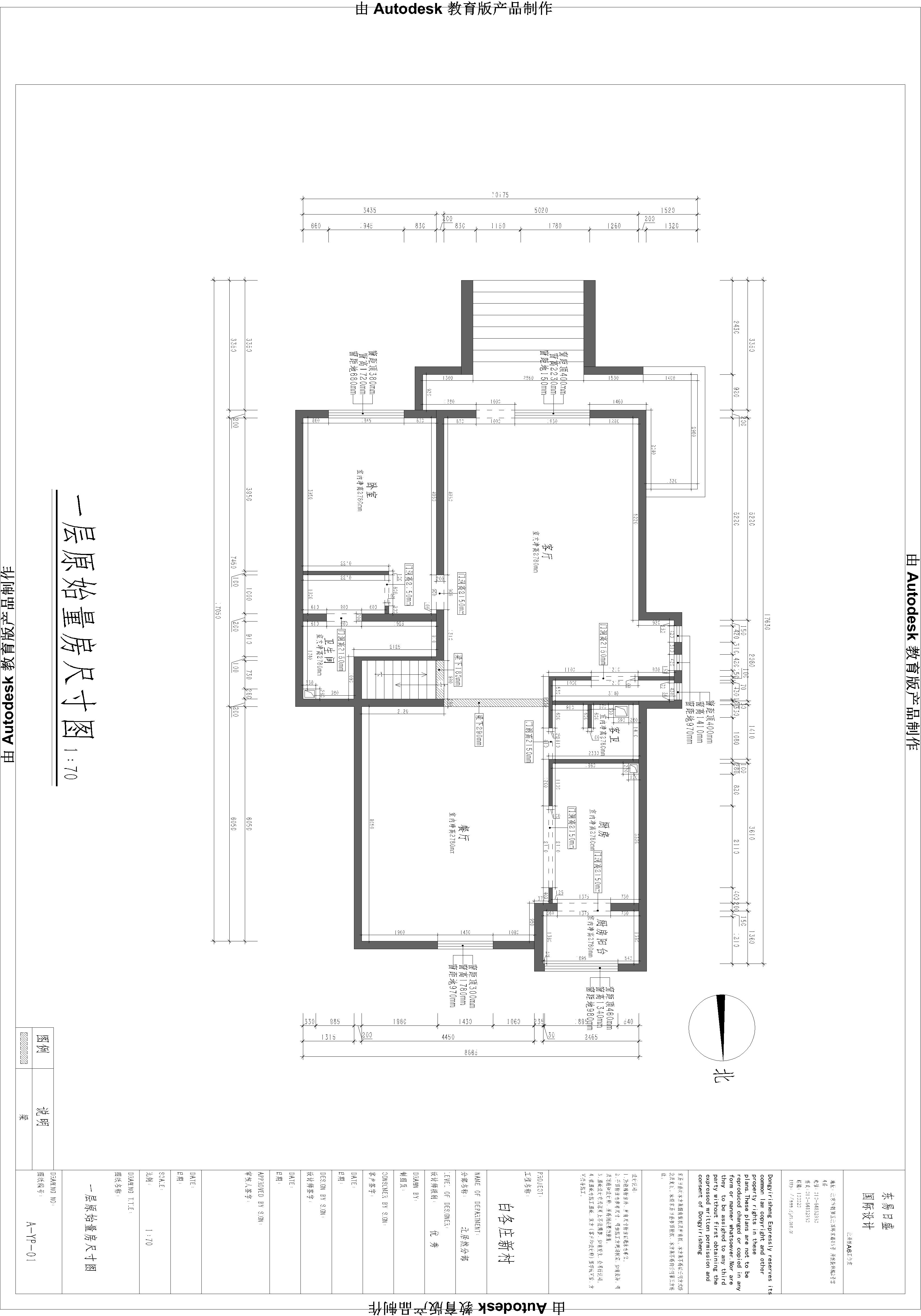
| 設計風格 | 新中式 | 戶型案例 | 5室4衛2廳 | 案例面積 | 220 |
|---|---|---|---|---|---|
| 樓盤名稱 | 白各莊新村 | 所在城市 | 北京 | 案例造價 | 18萬(不含主材) |
| 設計師 | 李瑞 | ||||

案例說明:
本案設計風格是新古典和中式風格的結合,意在營造典雅,自然,純凈,奢適的自然空間。整個空間是中西方文化的碰撞,古典和現代的并存。同風格案例:更多>>
同面積案例:
| 客服專線: | 010-84580331 | 加盟專線: | 010-82272748 | (工作日:9:00-18:00) |
預約加盟
預約裝修
客戶服務
返回頂部
闊達標準工程,一看就不同!
全國累計已有一百余家加盟公司
免費獲得家裝服務
全國各地業主都在申請!
闊達裝飾竭誠為您服務!
| 設計風格 | 新中式 | 戶型案例 | 5室4衛2廳 | 案例面積 | 220 |
|---|---|---|---|---|---|
| 樓盤名稱 | 白各莊新村 | 所在城市 | 北京 | 案例造價 | 18萬(不含主材) |
| 設計師 | 李瑞 | ||||
