【黃石】匯龍居
更新時間:2019-03-27
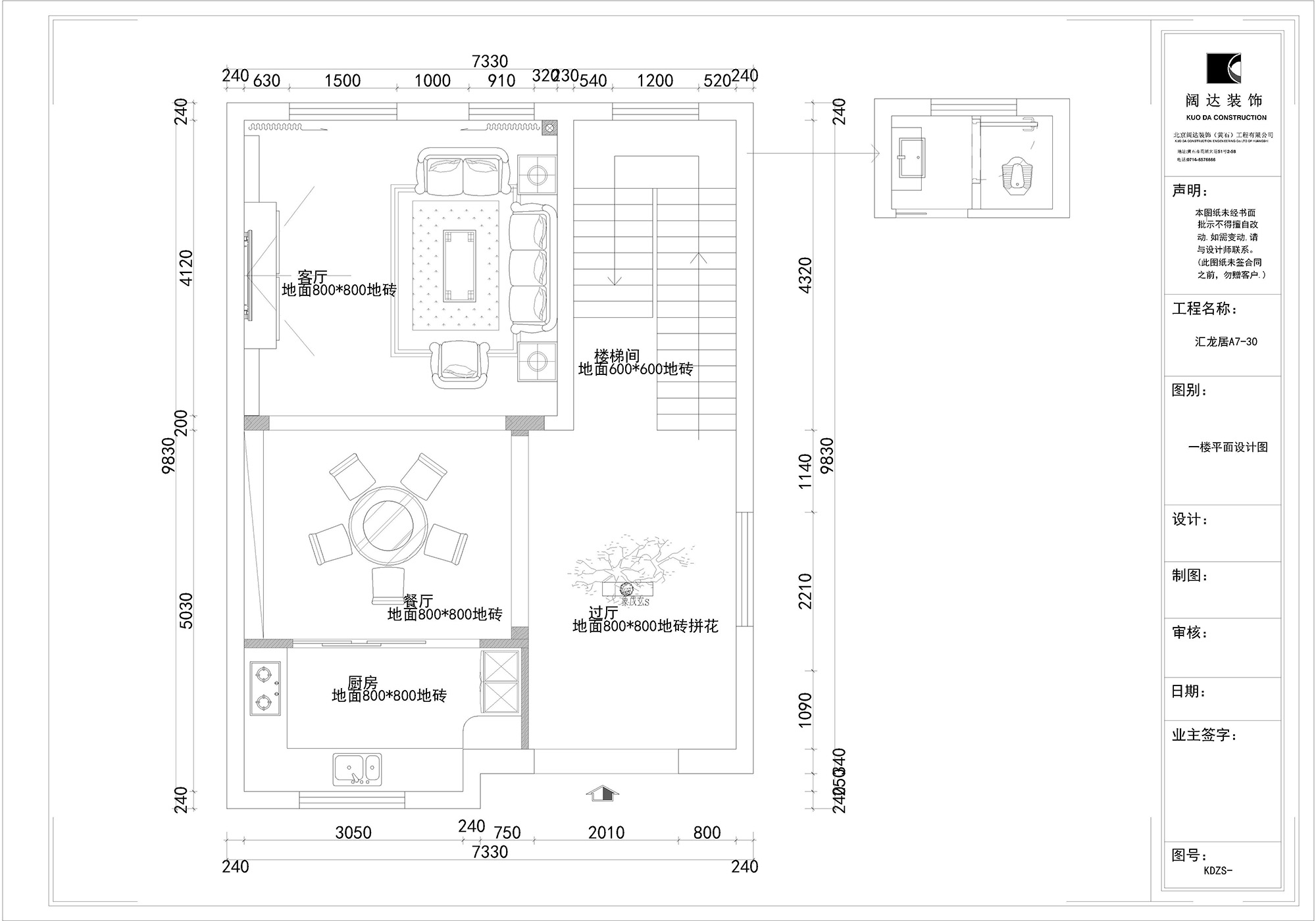
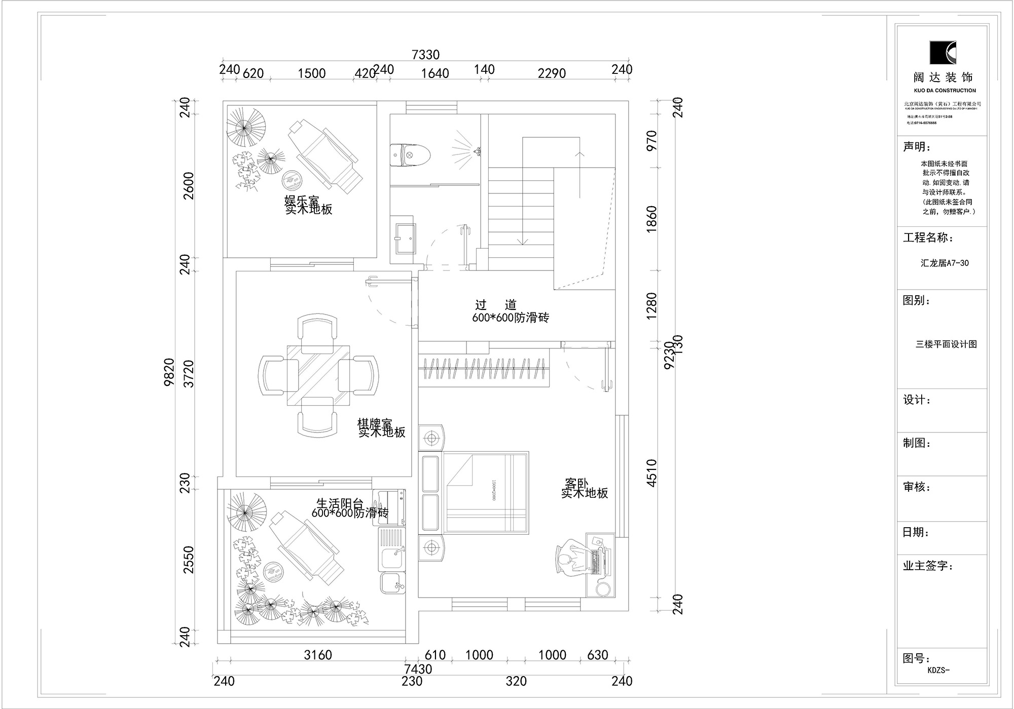
| 設計風格 | 后現代 | 戶型案例 | 四室兩廳一廚兩衛 | 案例面積 | 180 |
|---|---|---|---|---|---|
| 樓盤名稱 | 匯龍居 | 所在城市 | 黃石市 | 案例造價 | 38萬 |
| 設計師 | 徐小仙 | ||||

案例說明:
本案例采用后現代簡約風格裝修,客戶為一對三十出頭中年人,事業初有成就,在家庭事業穩定上升的時期里,客戶更偏向于簡約且穩重的風格走向,在簡約的元素中也添加了一些溫馨的黃色調,更增加了客戶對家庭的熱愛。同風格案例:更多>>
同面積案例:
| 客服專線: | 010-84580331 | 加盟專線: | 010-82272748 | (工作日:9:00-18:00) |
預約加盟
預約裝修
客戶服務
返回頂部
闊達標準工程,一看就不同!
全國累計已有一百余家加盟公司
免費獲得家裝服務
全國各地業主都在申請!
闊達裝飾竭誠為您服務!
| 設計風格 | 后現代 | 戶型案例 | 四室兩廳一廚兩衛 | 案例面積 | 180 |
|---|---|---|---|---|---|
| 樓盤名稱 | 匯龍居 | 所在城市 | 黃石市 | 案例造價 | 38萬 |
| 設計師 | 徐小仙 | ||||
