空軍御宸上院
更新時間:2017-06-01
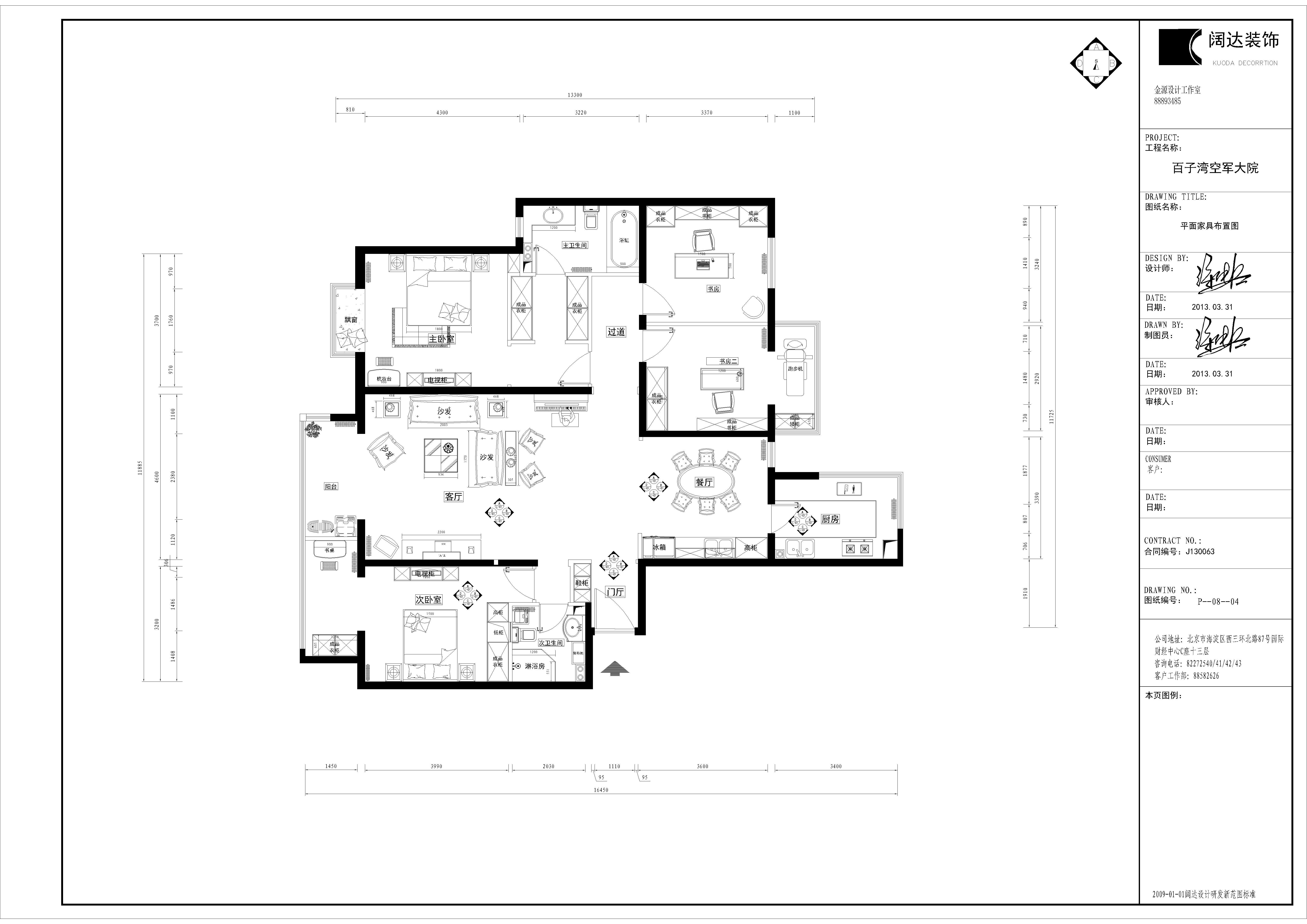
| 設計風格 | 美式新古典風格 | 戶型案例 | 3室2衛1廳 | 案例面積 | 200 |
|---|---|---|---|---|---|
| 樓盤名稱 | 空軍御宸上院 | 所在城市 | 北京 | 案例造價 | 12萬(不含主材) |
| 設計師 | 徐傳兵 | ||||

案例說明:
通過與業主溝通,了解家庭成員夫妻和女兒居住和使用需求,結合房屋本身的結構特點,主臥室無單獨衣帽間。門廳要大滿足主人實用功能,還要體現玄關功能.客廳與餐廳吊頂整體設計,另外起居室書房處理要考慮實用性和裝飾性。同風格案例:更多>>
同面積案例:


















京公網安備 11010802032436號