【青島】振華苑呂
更新時間:2019-04-04
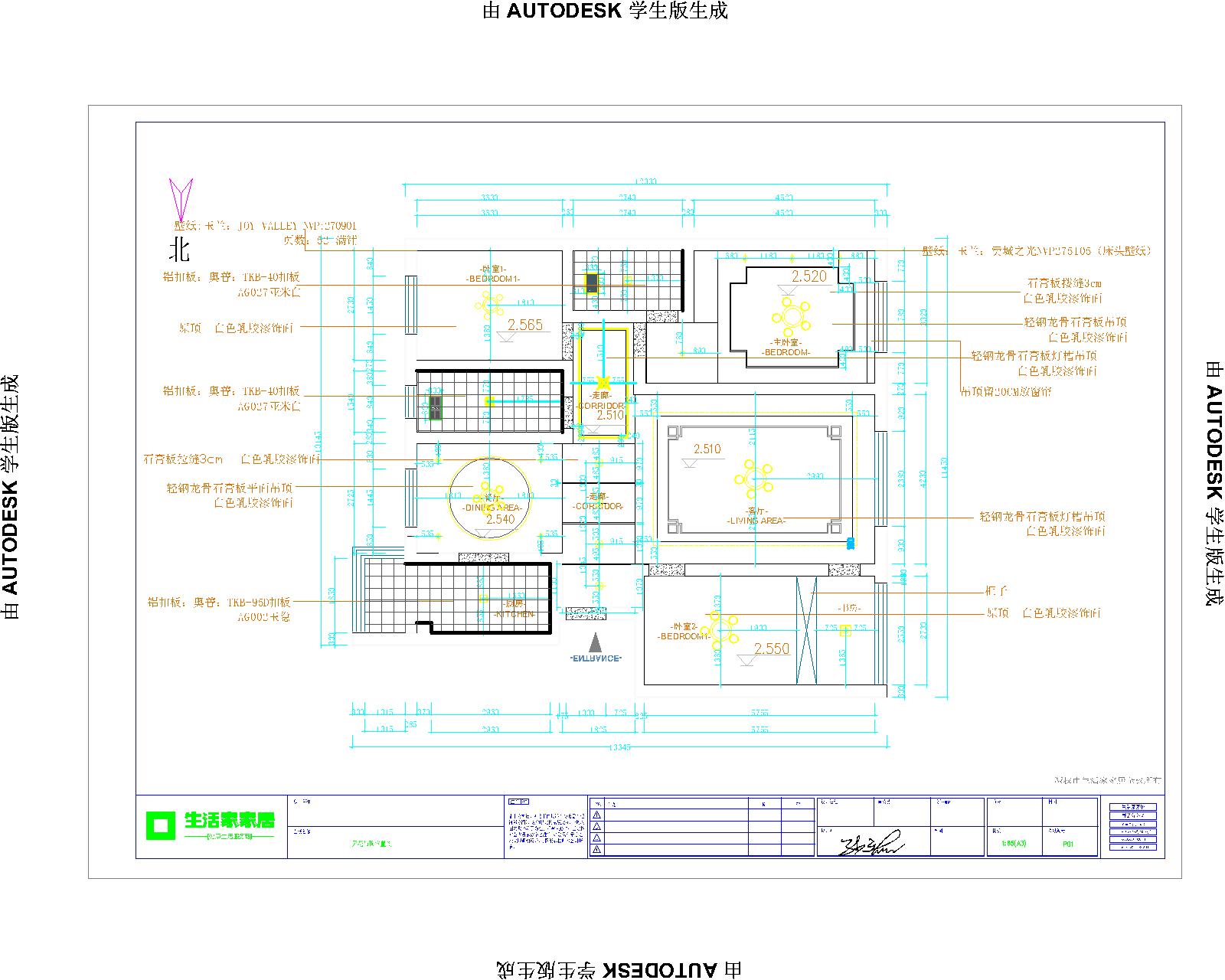
| 設計風格 | 中式 | 戶型案例 | 4居 | 案例面積 | 145 | 
|---|---|---|---|---|---|
| 樓盤名稱 | 振華苑呂 | 所在城市 | 青島 | 案例造價 | 14萬 | 
| 設計師 | 孫連凱 | ||||

案例說明:
本案中的145平米的四居室整體采用了中式風格裝修,過對傳統文化的解讀,將現代元素與傳統元素結合,以現代人的審美需求來打造富有傳統韻味的細節。風塵俱靜,禪味悠長。同風格案例:更多>>
						
						
						
						同面積案例:
						
						
						
					| 客服專線: | 010-84580331 | 加盟專線: | 010-82272748 | (工作日:9:00-18:00) | 
						預約加盟
						預約裝修
						客戶服務
						返回頂部
闊達標準工程,一看就不同!
全國累計已有一百余家加盟公司
免費獲得家裝服務
全國各地業主都在申請!
闊達裝飾竭誠為您服務!
| 設計風格 | 中式 | 戶型案例 | 4居 | 案例面積 | 145 | 
|---|---|---|---|---|---|
| 樓盤名稱 | 振華苑呂 | 所在城市 | 青島 | 案例造價 | 14萬 | 
| 設計師 | 孫連凱 | ||||
